Détails du projet
Rue de la Ceinture
Argenteuil 95018
Date du chantier
2024
Effectif présent
4 personnes
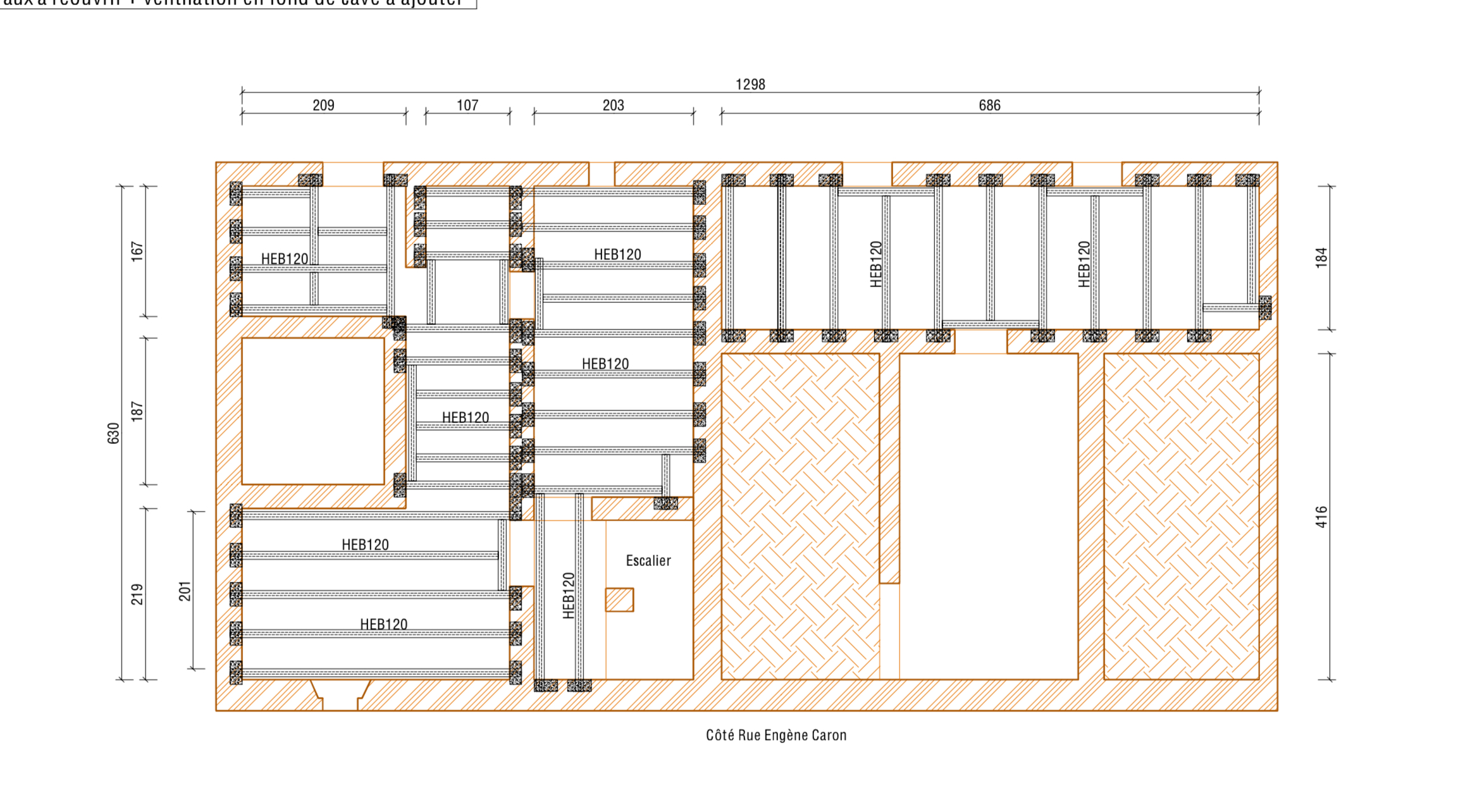
RENFORCEMENT STRUCTURE MÉTALIQUE
Le projet inclut la création du plancher de la cave avec une mise en œuvre en sous-face, en utilisant un plancher "à l'italienne" et un système poutrelles-entrevous en hourdis terre cuite. Les travaux comprennent également le décaissement du sol de la cave, le cloisonnement des espaces et l'ouverture de soupiraux pour garantir une ventilation adéquate et une utilisation optimale de l’espace.
