
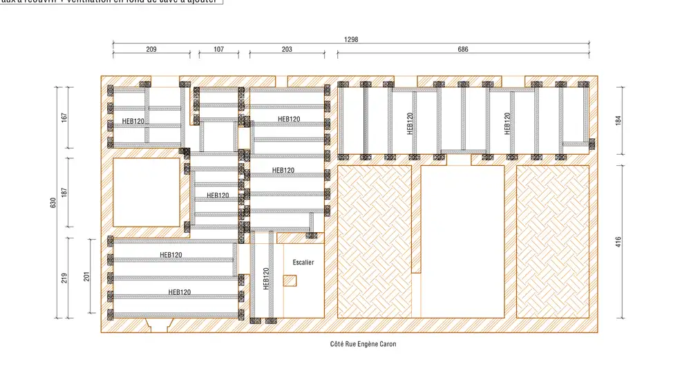
Renforcement Métallique
Paris 8ème


Création plancher poutrelle hourdis terre cuite
Technique en sous-face dite à l'italienne
Création des cloisons des caves et ouverture des soupiraux
Décaissement sol et reprise en sous-œuvre des murs porteurs
Plan d'exécution selon rapport et calcul de charge du bureau d'étude structure
Contactez-nous pour discuter de votre projet et obtenir un devis personnalisé.
Nous contacterContactez-nous dès aujourd'hui pour un devis gratuit et personnalisé. Notre équipe d'experts est à votre écoute.